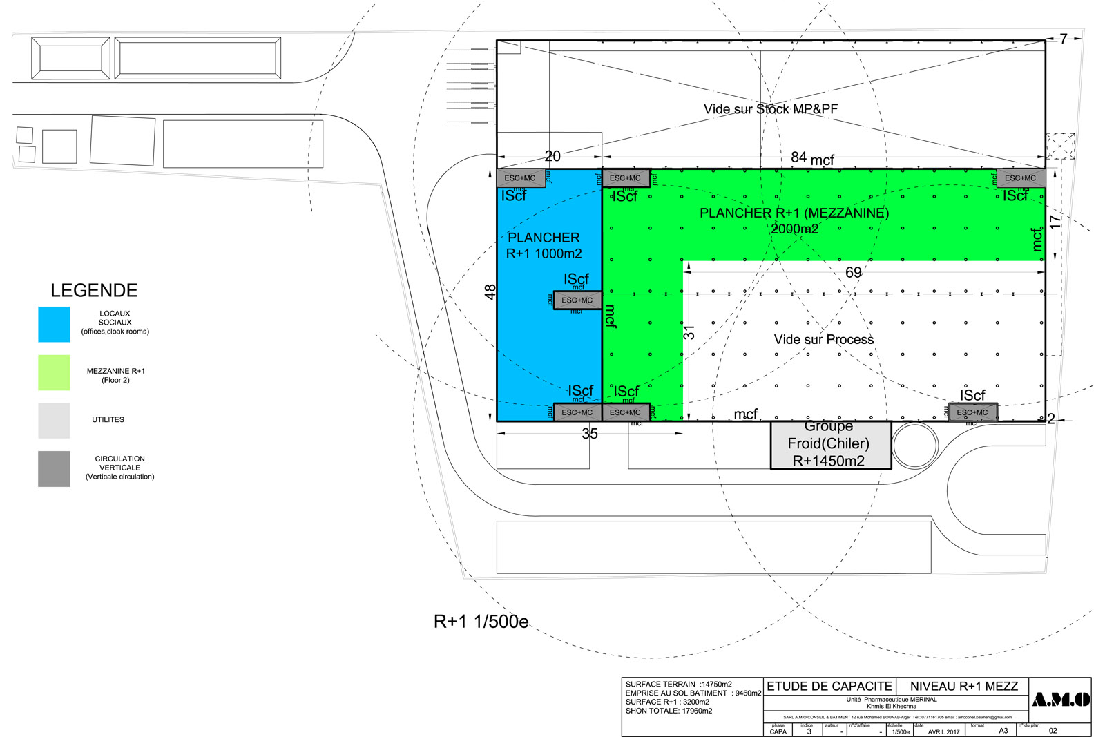
MERINAL
LABORATOIRES MERINAL
Unité de production pharamaceutique
Info
-
Année : 2017
-
Client : LABORATOIRES MERINAL
-
Lieu : Alger, Algérie





