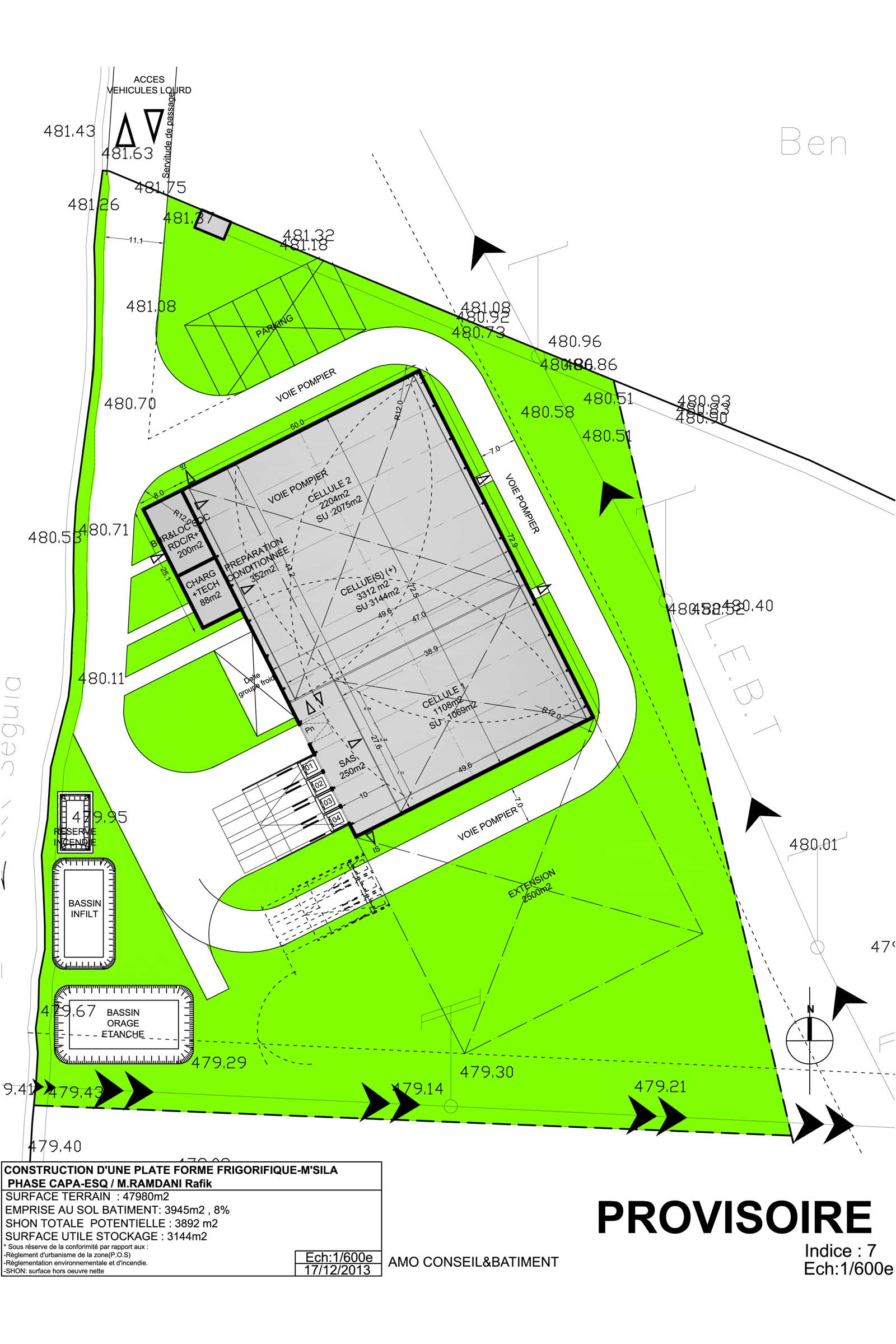
SAF LOGISTIC
SAF LOGISTIC
Entrepôt de stockage frigorifique
Info
-
Année : 2013
-
Client : SAF LOGISTIC
-
Lieu : M'Sila, Algérie




