SARL EMA
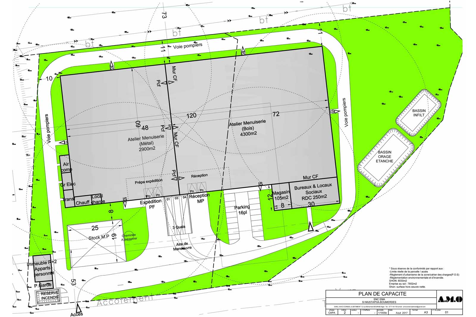
SARL EMA INDUSTRIES
Unité de menuiseries industrielles
Info
-
Année : 2017
-
Client : SARL EMA INDUSTRIES
-
Lieu : Boumerdes, Algérie


